$7 million project going for its final local approval in next few months
ERMA —– Jamie Sutton and Bob Buglak know from first-hand experience that parents are used to driving their sports-crazy kids all over creation for their recreation and traveling teams.
If things go as planned, Sutton (formally James W. Sutton III) and Buglak may provide a reprieve in Lower Township by winter 2027.
They own Aviation Sports Complex LLC, which is working on a $7 million project to bring a massive bubble dome indoor athletic complex to life at the Cape May County Airport. The project was initially announced in early 2024.
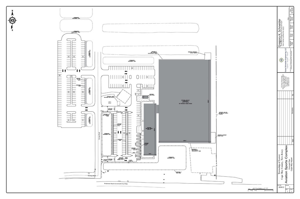
The air-supported dome would have 100,000 square feet of playing space attached to a 15,000-square-foot “welcome center” with other facilities. It would be situated close to the water tower near Breakwater Road.
Sutton understands what parents go through.

He has three kids — two college athletes and a third in high school — “heavily involved in sports as well.” His family was “traveling for every sport under the sun with the three of them. They couldn’t just all play the same sport. They had to play different sports.
“We were just running all over the world and I’ve been to like every sports facility on the East Coast. I swear,” Sutton said. “I’ve been at every basketball court, I’ve been at the soccer field, I’ve been at every swimming pool, track. It’s just crazy.”
His business partner, Buglak, whose kids are younger, “was finding the exact same problems.”
Buglak was looking at building a baseball training facility years ago in the Bensalem, Northeast Philadelphia area, but then moved down to southern New Jersey, Sutton said.
He and Buglak have known each other since their high school days; Sutton lives in Bucks County, Pa., near Doylestown, and Buglak now lives in North Wildwood.
“He started talking to the coaches and the directors of the different club teams that his kids were playing for, and they’re just like, ‘there’s nothing here,’ especially in the offseason, nowhere to play interior. He said they have to travel 45 minutes or an hour and a half to go to a league game or a practice facility.
“That’s really where this idea started once he moved down there,” Sutton said.
The facilities
The building would have 100,000 square feet of playing space inside, Sutton explained. The welcome center would have food services, a small retail area, some offices, restrooms, an entry/foyer area for teams and coaches to check in for tournaments and things like that.
“Inside the dome, the current layout is still being finalized,” Sutton said. “It’s a pretty good ratio. We’ll have about 40 percent artificial turf for sports like soccer, field hockey, football, lacrosse, things like that, and then the other 60 percent of the interior dome space will be hardcourt surface for sports like basketball, volleyball, pickleball.”
They are considering a mezzanine seat area for parents, coaches and recruiters so they can have a better vantage point from which to watch players even on fields on the other side of the facility.
They plan “some really high-end technology” with video camera systems to stream games that would be available on an app for parents and as a recruiting tool for players hoping to play sports in college.
The cost
Sutton anticipates the cost of the entire project will be about $7 million.
The big-ticket items are $2 million to build the welcome center and $2.2 million for the dome.
The cost of the dome includes the design, engineering, manufacturing, delivery and actually inflating it, Sutton said, noting they have gotten those expenses from dealing with the manufacturers.
They are pretty solid on the welcome center expense because there is a similar building almost adjacent to the site where they plan to build.
They also have some proposals from local contractors to do the site work for the parking and the storm management and other work.
“To get it up and running, we’re looking at about $7 million,” Sutton confirmed.

Why the airport?
There are a number of factors that drew the Aviation Sports Complex owners to the Cape May County Airport.
“My business partner and I had looked for quite some time about purchasing regular lands, not owned by this municipality or the county or the airport or whatever,” Sutton said, “but we just ran into a lot of problems with it and knowing that you have to go through CAFRA.” CAFRA — the Coastal Area Facility Review Act — is “just an onerous process from what we’ve been told and you have to outlay a considerable amount of time, effort money. And then a lot of projects don’t get approved because there are some sort of either environmental issue or an issue with wildlife or things like that.”
The 1,100-acre Cape May County Airport property is CAFRA exempt, part of the so-called Cafiero Doughnut named after late state Sen. James Cafiero, who made that carve-out happen, according to Cape May County Administrator Kevin Lare.
They would be leasing the site on a long-term lease with Cape May County. While that cost is significant, Sutton said, it lowers the amount of up-front cash and what would be an expensive purchase elsewhere.
That CAFRA exemption also made the property more attractive, Sutton said, “because the process time would be less and costs would be less. Also the upfront cost of purchasing 7 acres of property for the areas that we’re looking at were pretty significant.”
He said when his partner was turned onto the airport and saw the opportunity with the CAFRA exemption, that they could lease and be close enough to all the shore points with easy access, “it just seemed like this would be a great opportunity for everybody down there.”
Project progress
Sutton said they have completed all of the testing and site work so they can get an application into Lower Township.
“Our architectural renderings are completed and our engineering site plans are virtually completed. I’m not going to say they’re 100 percent completed because there were some additional stormwater management calculations that needed to be done by our engineers,” he explained “but basically all of that preparation work with the architect and the landscape engineer are pretty much complete at that point.”
He said they have been approved by the Delaware River and Bay Authority (DRBA), which manages the airport for the county, and the Cape May County Board of Commissioners also has approved the lease.
“There were some legal technicalities there that needed to be done. There’s a separate agreement that the county was executing to say that they’re approving the lease, so that has just been signed,” he said. “I think from a legal and engineering and architectural perspective, we’re very close to being able to submit it to the township.”
He expects that to happen in the next few months.
Sutton noted they are working with the county on some things that aren’t public yet, including projects with local teams being able to use the space and additional projects for special needs students and senior citizens.
In the interview Oct. 8, Sutton said they want to have all the details worked out so they can have the application into the township “in the next couple of months.”
When it could open
Asked when the bubble dome could open, Sutton replied, “That’s a really good question.”
He said the dome manufacturer would probably be able to deliver within 120 days after the partners get their final approval, but it could be spring before they can actually begin construction at the site.
“From what I’ve been told with the contractors that we’ve been working with, we think that from approval to having it ready to play on we’re probably looking at a year,” Sutton said.
“We’re obviously working really hard to push it sooner than that, but with all these kind of projects, you think things are going to go smoothly and inevitably you run into some hurdles, which is what slowed things down. Things now are looking really positive,” he said. “It’s just taken a lot longer than we would have initially anticipated, but I think a year from the approval date sounds about right.”
An added audience
Sutton and Buglak didn’t figure this into their equation, but their project could get an added boost in the Lower Township community, or more specifically, “a city within a city.”
Cape May County Commission Director Leonard Desiderio, Commissioner Bobby Barr from Ocean City and Lare announced earlier this month they hope to build a housing development on a 33-acre site at the airport. (See story online at ocnjsentinel.com.)
Their mixed-income housing proposal, with a potential for 300 units, is designed to be attractive to families who are having a hard time affording to stay in — or move to — a county with ever-rising housing prices.
– By DAVID NAHAN/Sentinel staff
